3. Semester
Massivbauweisen
2024/25
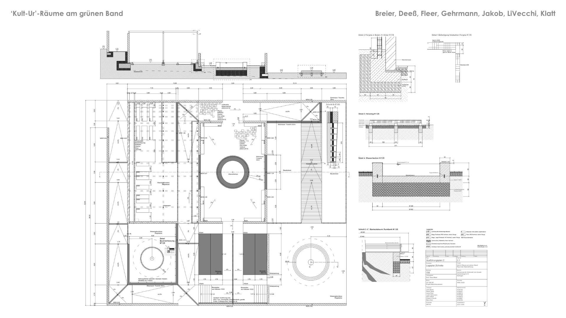
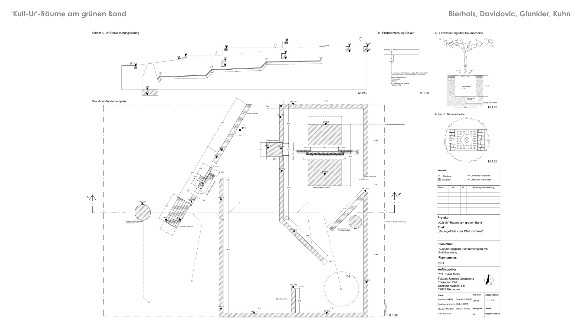
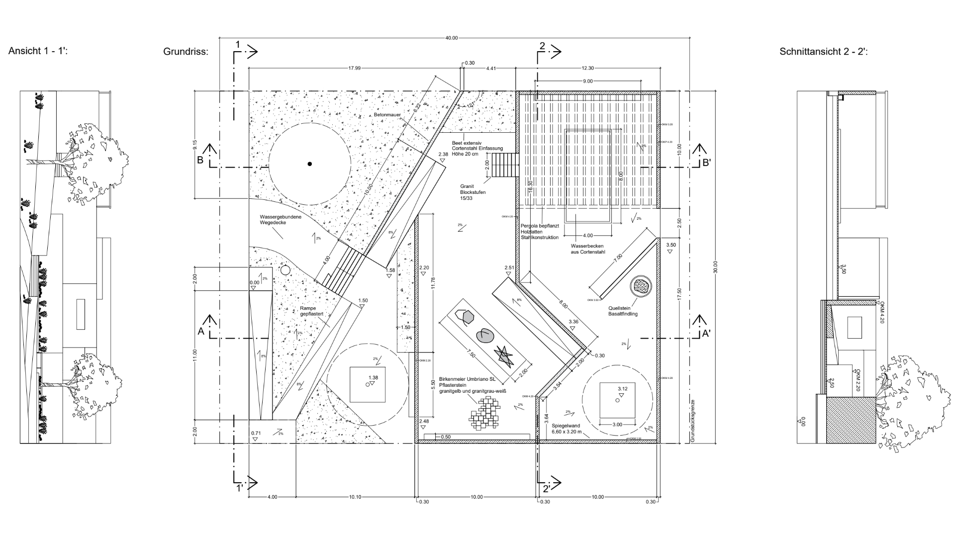
‘Kult-Ur’-Räume am grünen Band
Entlang der Hangkante zwischen Wohngebiet und Park sollen neue „Kult-Ur“-Räume entstehen. Für ein jährlich stark besuchtes Kunst- und Kulturfestival lobt die Stadt N. einen Wettbewerb aus, der barrierefreie Wege, raumbildende Mauern und thematische Pavillons miteinander verbindet.
Das Projekt bietet die Chance, den Übergang zwischen Stadt und Landschaft neu zu gestalten: Wie kann die Hangkante als „Grünes Band“ gestärkt werden, welche räumlichen Qualitäten braucht der Ort, und wie lassen sich Nachhaltigkeit, Lärmschutz und atmosphärische Gestaltung überzeugend zusammenführen?
Betreuer:
Prof. Dipl.-Ing. Klaus Meier














