Skip to navigation Skip to content
Logo LANT Grün Grau
  • DE
  • latest
    • projects
    • excursions
    • events
    • lectures
  • campus
    • campus
    • NILa
    • ARTUR student cafe’
    • model building studio
    • CAD/GIS LAB
    • teaching and test gardens
  • study
    • landscape architecture
    • study contents
      • foundation courses
      • In-Depth Study Design
      • Advanced studies in planning and construction
    • students
    • professors
    • TIPS & TRICKS
    • apply
  • latest
    • projects
    • excursions
    • events
    • lectures
  • campus
    • campus
    • NILa
    • ARTUR student cafe’
    • model building studio
    • CAD/GIS LAB
    • teaching and test gardens
  • study
    • landscape architecture
    • study contents
      • foundation courses
      • In-Depth Study Design
      • Advanced studies in planning and construction
    • students
    • professors
    • TIPS & TRICKS
    • apply

Latest

SPACE AND FORM

LAKE IN OWEN

EARTHWORKS AND PATH CONSTRUCTION

EXCURSION RUHRGEBIET DAYS 3 TO 5

EXCURSION RUHRGEBIET DAYS 1 AND 2

CONSTRUCTION METHODS

ROAD DESIGN

MODEL MAKING

LANDSCAPE DESIGN

EXCURSION COPENHAGEN LA8

ELEVATION MODEL

STUTTGART CITY HALL QUARTER

MAX-PLANCK-GYMNASIUM NÜRTINGEN

STUDY TRIP DAYS 3 TO 5

CAMPUS AND SURROUNDINGS GÖPPINGEN

STUDY TRIP MUNICH DAYS 1 AND 2

PORT AND LOCK PARK KASSEL

DESIGN PROJECT GARDEN

LEPORELLO

PAKETPOSTHALLE MUNICH

SPACE AND FORM

COLOGNE CHURCH YARDS

PLANNING VEGETATION

PETER-JOSEPH-LENNÉ-PRICE 2024

DESIGN PROJECT FRONT GARDEN

LEPORELLO

HÖLDERLIN-GYMNASIUM NÜRTINGEN

KAMMHUBER AREAL KARLSRUHE

FUTURE CITY EBERTPLATZ KÖLN

STUDY TRIP BARCELONA

FOREST LAB 2023

FUTURE CONCEPT SCHORNDORF

AVELA CONFERENCE: WATER-SENSITIVE URBAN DEVELLOPMENT

SKETCHING VENICE

VENICE DESIGN CHARETTE – IMPRESSIONS

KARLSRUHE TECHNOLOGY PARK – BACHELOR DESIGN 2023

News

  • SPACE AND FORM
  • LAKE IN OWEN
  • EARTHWORKS AND PATH CONSTRUCTION
  • EXCURSION RUHRGEBIET DAYS 3 TO 5

Recent Comments

    Archives

    Themen

    Meta

    • Log in
    • Entries feed
    • Comments feed
    • WordPress.org

    artur

    Campus

    Modellbauwerkstatt

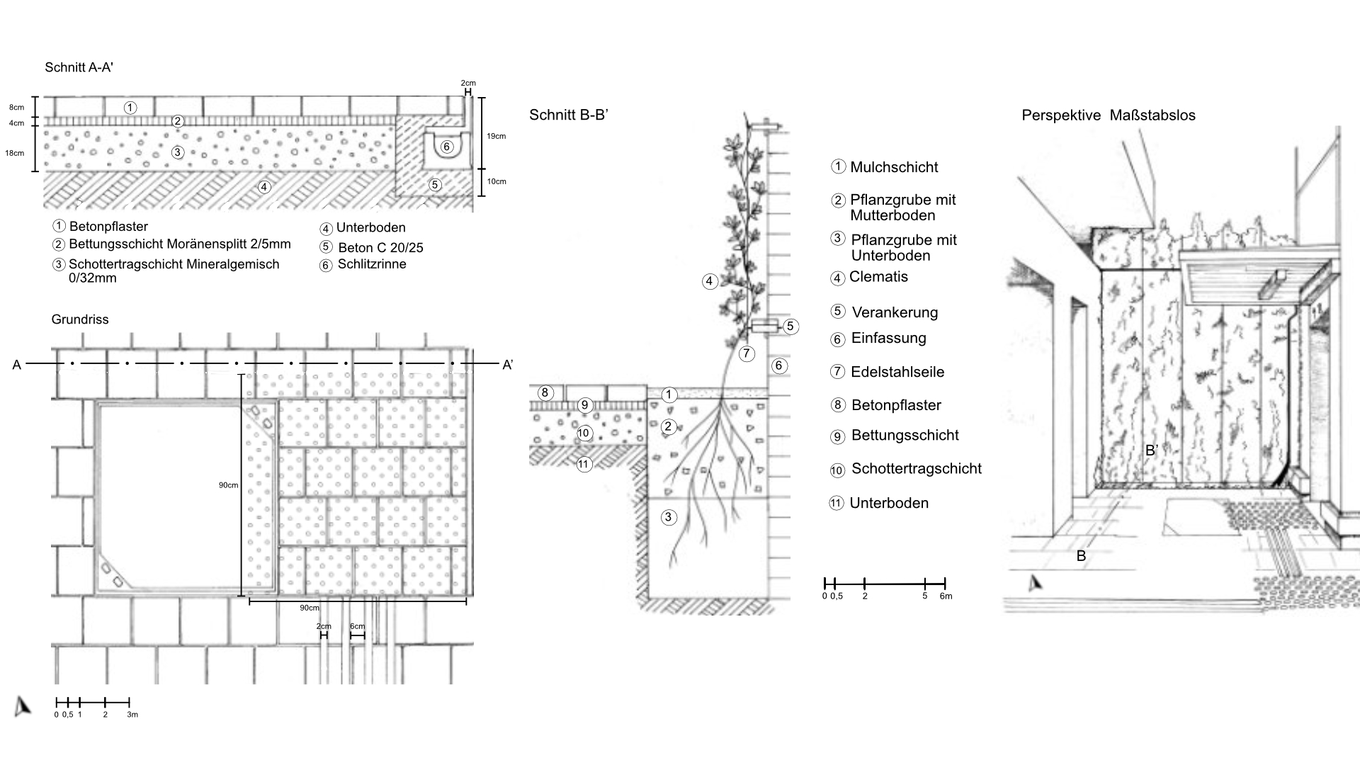
    Trotz der fortschreitenden Computertechnik mit Visualisierungen ist der Modellbau stets ein wichtiger teil der Planung für Projekte geblieben. Er kann bei der Entwicklung oder Überprüfung von Wegesystemen oder der Platzierung von Elementen von großem Vorteil sein. Im neuen Anbau des Campus findet man die Modellbauwerkstatt.

    Georg Mohring ist der Wekstattleiter und hat alle notwendigen Maschinen zum Modellbau in seiner Werkstatt – auch ist er der Kummerkasten der Studierenden.

    Fotos : H. Essig, T.Kunkel

    Pages

    • About Us
    • Campus
      • ARTUR student café
      • CAD/GIS LAB
      • Model building studio
      • NILa
      • Teaching and test gardens
    • Contact Request
    • Designing gardens
    • Imprint
    • Landscape Architecture
    • Latest
      • Events
      • Excursions
      • Lectures
      • Projects
    • PRIVACY
    • Professors
      • PROF. ANNEGRET STÖCKER
      • PROF. DIPL.-ING. KLAUS MEIER
      • PROF. DIPL.-ING. RAINER SACHSE
      • PROF. DIPL.-ING. SIGURD HENNE
      • PROF. DIPL.-WIRTSCH.-ING LUDWIG SCHEGK
      • PROF. DR. ANKE KARMANN-WOESSNER
      • PROF. DR. BIRGIT KRÖNIGER
      • PROF. DR. NICOLE PFOSER
      • PROF. DR.-ING. DIRK STENDEL
      • PROF. DR.-ING. HENNING KRUG
    • Students
    • Study
    • Study contents
      • Advanced studies in planning and construction
        • Implementation planning
        • LA 4
          • Building construction IV LAB
        • LA 6
          • Building in an environment
        • LA 7
        • LA 8
          • Bachelor Thesis Construction
      • Apply
      • Foundation courses
        • LA 1
          • Basics of Design 2
          • Basics of execution planning
          • Basics of Representation 1
          • Building construction 1
          • Introduction to design
        • LA 2
          • Basics of display
          • Building construction II
          • Vegetation planning II and vegetation technology
        • LA3
          • Building construction III
          • Designing for specific user groups
      • In-Depth Study Design
        • Communication 1
        • Designing in public space
        • Implementation planning
        • LA 6
        • LA 6
          • Elective module
        • LA 8
          • Bachelor Thesis LAE
          • Workshop integrated planning
        • Solving complex design tasks
        • Urban Design

    Pages

    • About Us
    • Campus
      • ARTUR student café
      • CAD/GIS LAB
      • Model building studio
      • NILa
      • Teaching and test gardens
    • Contact Request
    • Designing gardens
    • Imprint
    • Landscape Architecture
    • Latest
      • Events
      • Excursions
      • Lectures
      • Projects
    • PRIVACY
    • Professors
      • PROF. ANNEGRET STÖCKER
      • PROF. DIPL.-ING. KLAUS MEIER
      • PROF. DIPL.-ING. RAINER SACHSE
      • PROF. DIPL.-ING. SIGURD HENNE
      • PROF. DIPL.-WIRTSCH.-ING LUDWIG SCHEGK
      • PROF. DR. ANKE KARMANN-WOESSNER
      • PROF. DR. BIRGIT KRÖNIGER
      • PROF. DR. NICOLE PFOSER
      • PROF. DR.-ING. DIRK STENDEL
      • PROF. DR.-ING. HENNING KRUG
    • Students
    • Study
    • Study contents
      • Advanced studies in planning and construction
        • Implementation planning
        • LA 4
          • Building construction IV LAB
        • LA 6
          • Building in an environment
        • LA 7
        • LA 8
          • Bachelor Thesis Construction
      • Apply
      • Foundation courses
        • LA 1
          • Basics of Design 2
          • Basics of execution planning
          • Basics of Representation 1
          • Building construction 1
          • Introduction to design
        • LA 2
          • Basics of display
          • Building construction II
          • Vegetation planning II and vegetation technology
        • LA3
          • Building construction III
          • Designing for specific user groups
      • In-Depth Study Design
        • Communication 1
        • Designing in public space
        • Implementation planning
        • LA 6
        • LA 6
          • Elective module
        • LA 8
          • Bachelor Thesis LAE
          • Workshop integrated planning
        • Solving complex design tasks
        • Urban Design

    pick a language

    • Deutsch
    • Deutsch
    • English

    HfWU Nürtingen Geislingen
    landscape architecture
    Schelmenwasen 4-8
    72622 Nürtingen

    IMPRINT
    ABOUT
    PRIVACY
    CONTACT